Etaj 13 | Tavane 3.5 m | Terasă generoasă | Vedere Lacul Floreasca
Zonă: Bucuresti - Floreasca
ID Proprietate: CP2973076
Preț:
1.095.000€
(+ 21% TVA)
Crosspoint vă prezintă pentru vânzare un apartament spectaculos, situat la etajul 13 a unui proiect premium din nordul capitalei, ce oferă priveliști impresionante asupra orașului și Lacului Floreasca.
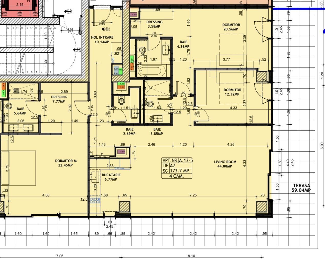
Proprietatea dispune de o suprafață utilă de 143 mp și o terasă generoasă de 60 mp, ideală pentru momente de relaxare sau socializare la înălțime.
Unul dintre elementele care definesc acest apartament este reprezentat de tavanele înalte de 3,5 m, care creează o senzație de spațiu și eleganță.
Ferestrele ample și vitrajele panoramice permit luminii naturale să inunde fiecare încăpere, oferind în același timp perspective spectaculoase asupra orașului și lacului. Prin combinația dintre suprafețele generoase, lumina naturală și priveliștile deosebite, această proprietate oferă un stil de viață exclusivist într-una dintre cele mai apreciate zone ale Capitalei.
Adresă Etaj 13 | Tavane 3.5 m | Terasă generoasă | Vedere Lacul Floreasca
Oraș: Bucuresti
Stradă: Strada Gara Herastrau
Zonă: Floreasca
În apropiere: Mall Promenada, Lacul Floreasca,
Caracteristici Etaj 13 | Tavane 3.5 m | Terasă generoasă | Vedere Lacul Floreasca
Etaj: 13
Suprafață utilă: 143mp
Suprafață construită: 174mp
Camere: 4
Dormitoare: 3
Dotări și utilități Etaj 13 | Tavane 3.5 m | Terasă generoasă | Vedere Lacul Floreasca
Amenajare străzi:
- Străzi asfaltate
- Iluminat stradal
- Mijloace de transport în comun
Utilități generale:
- Apă
- Canalizare
- CATV
- Curent
- Gaz
- Internet
- Telefon
